22 Wohneinheiten, barrierefrei und seniorengerecht

Planungsumfang:
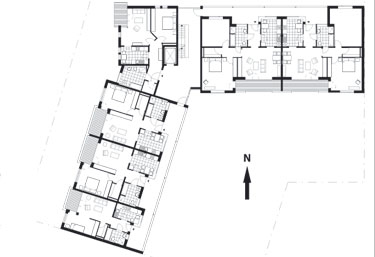
Neubau von 22 Wohneinheiten in Baunatal „Am obersten Heimbach“
Vorplanung, Entwurf, Baugenehmigung, Vertriebsunterstützung

Das Neubaugebiet bietet in idealer Lage, die Möglichkeit seniorengerechtes Wohnen am Kerngebiet von Baunatal mit ambulanter Betreuung zu verbinden. Gute Anbindungen und Infrastruktur schaffen Mobilität. Alle Wohnungen sind über einen Aufzug und windgeschützte Zugänge zu erreichen und werden barrierefrei ausgestattet. Die Wohnungen verfügen über einen großen Balkon, bodengleiche Dusche und Badewanne sowie gute Belichtung durch großzügige Fenster. PKW-Stellplätze werden in der Tiefgarage angeboten. Hohe Flexibilität bei der Gestaltung der Grundrisse und den Ausbauvarianten kennzeichnen den Entwurf.

Das Projekt befindet sich derzeit in der Planung.

In Planungsgemeinschaft mit Elmar Kriesten, Architekt

Pressebericht HNA vom 26.05.2004